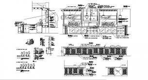
Bottle Store Building Plan

Arrack is a distilled alcoholic drink typically produced in the Indian subcontinent and Southeast Asia, made from the fermented sap of coconut flowers or sugarcane, and also with grain

Http Img3 Adsttc Com Media Images 552b 3823 E58e Cecd 8200 032c Large Jpg Plan En Copy Jpg 1428895762 Cafe Floor Plan Square Floor Plans Metal House Plans
Http Img3 Adsttc Com Media Images 552b 3823 E58e Cecd 8200 032c Large Jpg Plan En Copy Jpg 1428895762 Cafe Floor Plan Square Floor Plans Metal House Plans from www.pinterest.com

Bottle Store Building Plan.

Many retailers miss this point. Some of the more commonly used types of drawing are listed below with links to articles providing further information. 6 long term assets.

A solid floor plan is the perfect balance of ultimate customer experience and maximized revenue per square foot. Store layout planning and design is a profession all its own. A written business plan will help you meet these challenges and control your store s growth in a logical and organized way. 13 coffee and espresso. The purpose of a business plan.

Coffee house business plan. The other is a larger building made primarily of wine bottles with design accents made of old ashtrays glass floats candy dishes glass blocks and japanese floats this building was originally built as a small concert space that will seat 50 people plus a small stage. The success of your bottle store start up will be driven by the. Input your site layout measurements and building dimensions. 6 long term assets. 5 the coffee house concept. It will also prove to outside investors and lenders that your liquor store is a good financial risk. The plans for this diy wine rack include a list of required tools and materials a diagram and building instructions. Types of drawings for building design designing buildings wiki share your construction industry knowledge. The design knowledge and planning skills required to develop an entirely new retail store modify an existing floor plan or even remodel a specific area of your store is a daunting task for retailers focused on attracting customers and earning revenue.

RELATED POSTS : > low carb liquor options nearest liquor shop most popular alcoholic drinks brands nearest liquor shop near me nearest liquor shop open malort liquor slogans lot 40 whisky mad dog alcohol flavors montana spirits and wine malort drink

Many different types of drawing can be used during the process of designing and constructing buildings.

Many different types of drawing can be used during the process of designing and constructing buildings. According to the business publication hoovers around 30 000 liquor stores comprised the nation s small retail network in 2011. The success of your bottle store start up will be driven by the. Coffee house business plan. Some of the more commonly used types of drawing are listed below with links to articles providing further information. It will also prove to outside investors and lenders that your liquor store is a good financial risk. A written business plan will help you meet these challenges and control your store s growth in a logical and organized way. Choose from thousands of symbols and professional design themes to make your plans come to life. Many retailers miss this point. 12 the coffeehouse menu. Store layout planning and design is a profession all its own.

Bottle Store Building Plan. 12 the coffeehouse menu. They also did not have much room for big hobbies and from this came old treasures such as scrimshaw carvings and s.